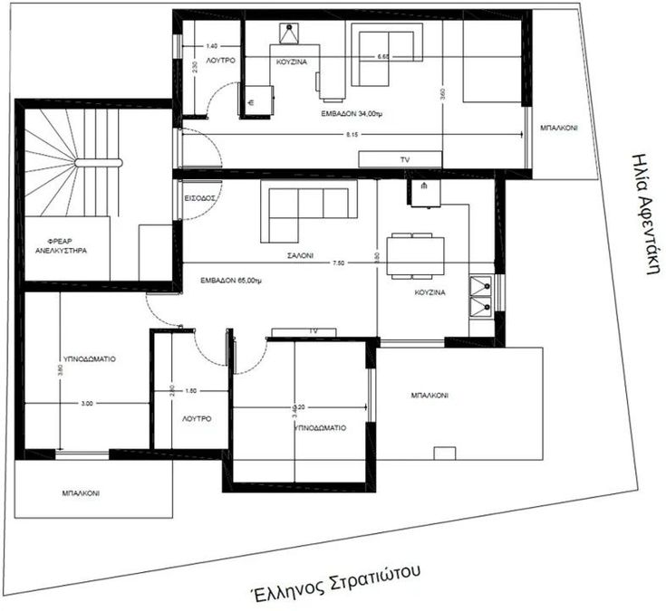
Διατίθενται προς πώληση δύο διαμερίσματα των 99 τ.μ. έκαστο, στην περιοχή Χαλκίδα – Νεάπολη. Τα ακίνητα βρίσκονται υπό κατασκευή και η ολοκλήρωσή τους προβλέπεται για τις αρχές του 2027. Κάθε διαμέρισμα αποτελείται από 3 υπνοδωμάτια, 1 μπάνιο, κουζίνα και σαλόνι, ενώ διαθέτει 1 θέση στάθμευσης σε ανοιχτό χώρο. Η θέρμανση είναι αυτόνομη με φυσικό αέριο (εγκατάσταση σε νέα οικοδομή), ενώ περιλαμβάνονται επίσης κλιματισμός, ηλιακός θερμοσίφωνας και θερμομόνωση. Τα κουφώματα είναι αλουμινίου με διπλά τζάμια και το ενεργειακό πιστοποιητικό είναι Α+. Τα διαμερίσματα είναι φωτεινά, με ανατολομεσημβρινό προσανατολισμό και θέα σε αστικό τοπίο. Βρίσκονται κοντά σε συγκοινωνίες, το κέντρο της πόλης, την αγορά και χώρους εστίασης. Επιπλέον χαρακτηριστικά: Ασανσέρ, αποθήκη, πόρτα ασφαλείας, συναγερμός, ήσυχη γειτονιά.
Τιμή πώλησης: €247.500 ανά διαμέρισμα.
Σε περίπτωση που η αγορά πραγματοποιηθεί πριν την ολοκλήρωση της κατασκευής, η τιμή διαμορφώνεται στα €2.400 ανά τετραγωνικό μέτρο.
*Η τοποθεσία είναι ενδεικτική. Για περισσότερες πληροφορίες και προγραμματισμό ραντεβού επικοινωνήστε μαζί μας.
KOSMOS REAL ESTATE
Υπεύθυνος ακινήτου: Νίκος
Τηλέφωνο επικοινωνίας: 6979014604
Email: nick@kosmosrealestate.gr






